parkland wedge preserve park:
as of november 4, 2024, i have successfully overseen the development of a major project from its initial conception through to the completion of 100% construction documents. this journey has involved active participation in site design meetings and close collaboration with the lead architect to bring to life three key buildings—a community center, restroom building, and maintenance building—on a sprawling 50-acre site. my role has evolved significantly since the 50% submittal, stepping into a project management role to ensure timely progress and coordination with various engineering teams within CPH. additionally, i independently modeled all three buildings, demonstrating my commitment and involvement in both the design and execution phases.
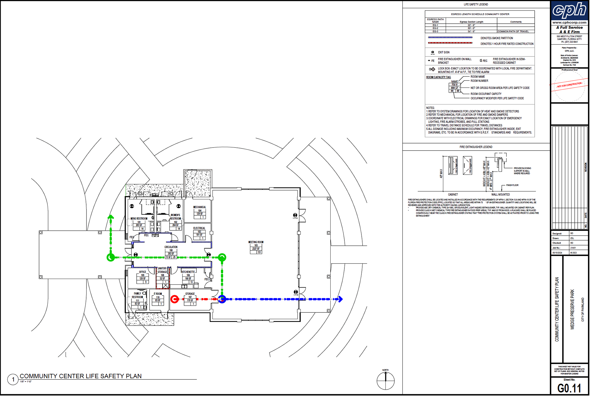
the selected drawings focus on the community center (the building that required the most attention and changes after client feedback) which i was most heavily involved with. the drawings featured are from the conceptual design submittal and 60% submittal. once completed, 100% drawings will be added.


















walmart:
upon joining CPH, i was assigned to the Walmart team, where i quickly identified a gap in internal structure, particularly for newcomers to large box store projects and architecture as a whole. recognizing the wealth of information from Walmart and their designers, i took the initiative to create a comprehensive powerpoint presentation outlining common mistakes and misconceptions faced by new team members. my goal was to facilitate a smoother transition for my peers, reflecting my belief in empowering others through knowledge rather than trial and error. this resource not only helped me gain a deeper understanding of the team but also became a valuable tool in our weekly meetings, aiding newer members in navigating their roles.
in addition to this initiative, i served as the lead grocery specialist for the Walmart team, responsible for modeling and developing construction documents for the grocery areas in remodels across the southeast. this role involved replicating Walmart prototypes while also applying my understanding of their brand identity to adapt to unique conditions. my work ensured that our designs met the high standards expected by Walmart, while also fostering a collaborative and supportive team environment.

































other work examples